当前位置: 首页 > 产品大全 > 河南某地区六层住宅楼风管平面暖通设计图纸解析与船舶风管应用借鉴

河南某地区六层住宅楼风管平面暖通设计图纸解析与船舶风管应用借鉴

河南某地区六层住宅楼风管平面暖通设计图纸解析与船舶风管应用借鉴

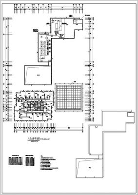
本文针对河南某地区六层住宅楼的暖通设计需求,重点分析风管平面设计图纸的关键要素,并结合船舶风管技术的应用经验,探讨其在住宅楼设计中的借鉴意义。河南地区气候四季分明,夏季炎热、冬季寒冷,对暖通系统的节能、效率和舒适性要求较高。

一、六层住宅楼风管平面设计要点

该住宅楼采用集中式暖通系统,风管平面设计遵循以下原则:

1. 结构布局:风管沿楼道和吊顶空间分布,减少对居住面积的占用。主管道设于楼梯间竖向井道,分层支管连接各户,确保气流均匀分配。

2. 材料选择:使用镀锌钢板风管,具备防火、耐腐蚀特性,符合建筑安全规范。接口采用密封连接,减少漏风损失。

3. 气流组织:设计考虑河南地区气候特点,夏季以制冷为主,冬季侧重供暖。风口位置优化,避免直吹居住区域,提升舒适度。

4. 节能设计:结合建筑保温结构,风管系统配置变频风机和智能温控,降低能耗。图纸标注了风量、风速参数,确保系统高效运行。

二、船舶风管技术的借鉴应用

船舶风管以其紧凑性、高强度和耐环境性著称,在住宅楼设计中可提供以下参考:

1. 空间优化:船舶风管常采用圆形或扁平设计,节省空间。住宅楼可借鉴此类结构,在狭小吊顶内实现高效通风。

2. 材料创新:船舶风管多用复合材料,轻质且耐腐蚀。在住宅楼中,可探索使用新型材料,延长系统寿命并减少维护成本。

3. 抗压与密封:船舶环境要求风管具备高抗压和严密密封,住宅楼设计可强化接口处理,防止漏气和噪音传播。

4. 模块化设计:船舶风管模块化便于安装和维护,住宅楼系统可引入类似理念,简化施工流程,提高可扩展性。

三、设计图纸的实践建议

基于河南地区实际,设计图纸应注重:

- 标注清晰:包括风管尺寸、走向、风口位置及控制系统节点。

- 兼容性:确保风管系统与建筑结构、电气管道协调,避免冲突。

- 可持续性:融入绿色建筑理念,如热回收装置,减少环境影响。

通过合理设计风管平面,并吸收船舶风管的先进技术,可提升住宅楼暖通系统的性能与可靠性。本图纸示例为类似项目提供了实用参考,强调因地制宜和跨领域创新。在实际应用中,建议结合当地规范进行细化,以实现最佳效果。

更新时间:2025-12-05 18:05:40

如若转载,请注明出处:http://www.shipduct.com/product/562.html